Sitzung läuft ab

Die Sitzung endet in Sekunden.

 
Barrierefreiheit Einstellungen
Einstellungen für die Barrierefreiheit

Schriftgröße
A A A
Kontrastmodus
Eingeschaltet Ausgeschaltet
Bilder
Anzeigen Verbergen
73961111_1 73961131_1 73961141_1 73961151_1 73961161_1 73961171_1 73961181 73961191_1 73961201_1 73961211 73961221_1 73961231 73961281 73961291 73961301 73961311 73961321 73961331 73961101
18 weitere Bilder ansehen

Haus in Köln kaufen

598.700 €
Immobilie teilen:
Ihr Ansprechpartner in Köln:

Nils Marquardt

cp_36031
Wohnfläche
173 m²
Grundstücksfläche
522 m²
Zimmer
7

Großes Familienhaus mit großem Sonnengarten!


Objektbeschreibung

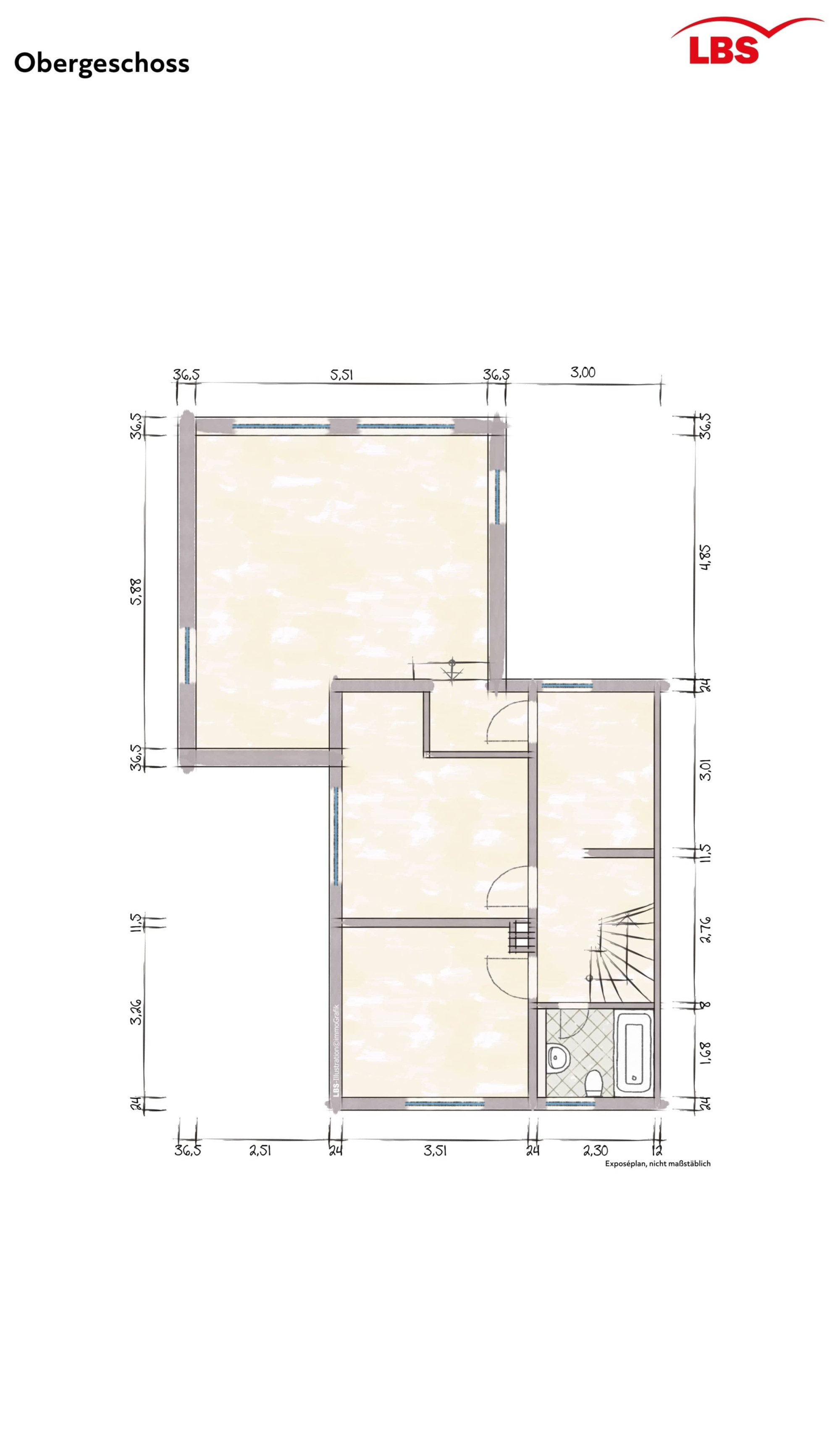
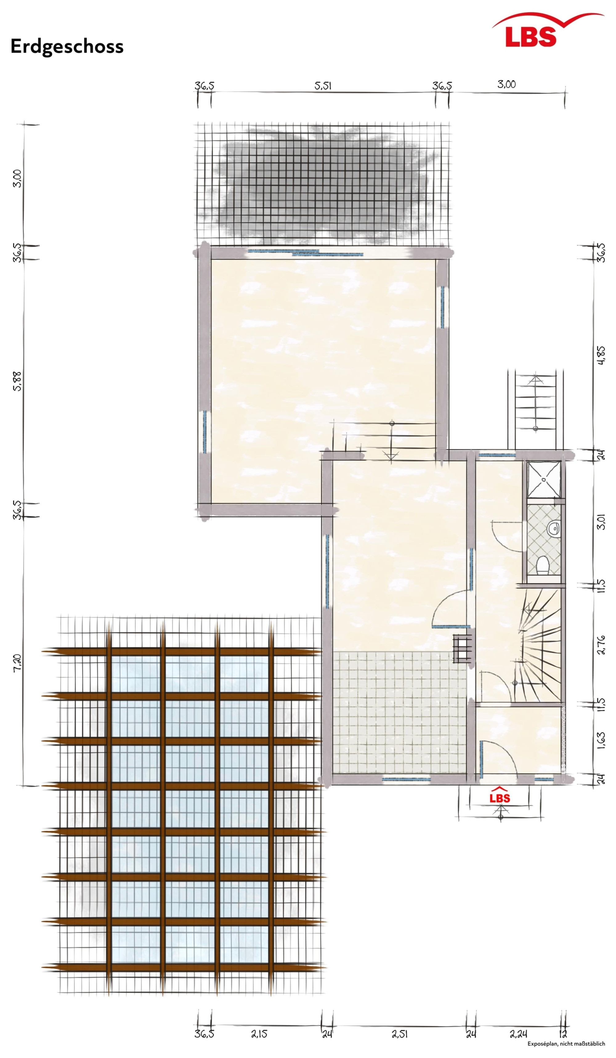
Diese charmante Doppelhaushälfte aus dem Jahr 1957 bietet eine hervorragende Basis für individuelles Wohnen mit viel Gestaltungsspielraum. Im Jahr 2010 wurde das Haus umfassend erweitert – im Erdgeschoss, Obergeschoss und Dachgeschoss entstand zusätzlicher Wohnraum, der vielfältige Nutzungsmöglichkeiten eröffnet. Im Zuge des Umbaus wurde außerdem das komplette Dach erneuert und das gesamte Gebäude gedämmt, sodass bereits wichtige Modernisierungsmaßnahmen umgesetzt wurden. Der Innenausbau befindet sich derzeit noch in einem unfertigen Zustand und bietet zukünftigen Eigentümern die Möglichkeit, den Ausbau nach eigenen Vorstellungen zu gestalten und Materialien, Farben und Ausstattung individuell zu wählen. Gleiches gilt für die Außenanlagen, die noch nicht final angelegt sind und sich flexibel nach persönlichem Geschmack und Bedarf gestalten lassen. Dank der durchdachten Erweiterung und der bereits erfolgten energetischen Verbesserungen bietet dieses Objekt eine hervorragende Grundlage für modernes Wohnen in einem gewachsenen Umfeld – ideal für Handwerker, Familien oder alle, die ihren Wohntraum selbst verwirklichen möchten.

Mehr erfahren

Noch keine passende Finanzierung?

Hier Finanzierungsangebot einholen.

Zum Angebot

Objektdetails

Preise

Kaufpreis 598.700 €
Käuferprovision 3,57 % (inkl. MwSt.)

Ausstattung

Bad Wanne, Fenster
Heizung Gas
Abstellraum Ja
Gartennutzung Ja
Bauweise Massiv
Dachform Satteldach

Flächen

Wohnfläche 173 m²
Grundstücksfläche 522 m²
Anzahl Zimmer 7
Anzahl Terrassen 1
Anzahl Schlafzimmer 5
Anzahl Badezimmer 2

Zustand

Baujahr 1957
Zustand -

Sonstiges

Objekttyp Doppelhaus (Doppelhaushälfte)
Objektnummer 158651NW
Objekt-ID FIO-10518545980
Anbieter-ID 161100

Beschreibung der Ausstattung


- Dach erneuert (2010)
- Anbau (2010)
- Haus gedämmt (2010)
- Fenster mit Isolierverglasung (2010)
- Elektro Installationen (2010)
- 7 Zimmer möglich (aktuell 6 Zimmer)
- Fußbodenheizung im Anbau
- Großzügiges Dachgeschoss zur freien Gestaltung
- Teil unterkellert (Bestand)
- PKW Stellplätze (Carport oder Garage möglich)
Mehr erfahren

Energiepass

Gültig bis 20.10.2035
Energieverbrauchkennwert 72,3 kWh/(m²*a)
Jahrgang 2014
Mit Warmwasser Ja
Primär Energieträger Gas
Wertklasse B
Energieausweistyp Verbrauchsausweis
Baujahr lt. Energieausweis 1957
Ausstellungsdatum 21.10.2025
Gebäudeart Wohngebäude
Endenergieverbrauch
72,3 kWh/(m²a)
A+
A
B
C
D
E
F
G
H
0
25
50
75
100
125
150
175
200
225
250
>250

Immobilie in Köln verkaufen?

Jetzt aktuellen Marktpreis erfahren.

Zum Preisfinder

Beschreibung der Lage


Lindweiler liegt linksrheinisch im Kölner Norden mit guten Verkehrsanbindungen, kinderfreundlich und ruhig, im Grünen und dennoch mit Zugang zum städtischem Leben. Drei Minuten dauert von hier die Fahrt zum nächsten Autobahnanschluss (Autobahnkreuz Köln-Nord, A1 und A57), ca.15 Minuten der Fußweg zur S-Bahn Richtung Köln oder Neuss. Eine Buslinie führt durchs Viertel und bietet eine gute Anbindung. Ausreichend Kindergärten und Grundschulen stehen zur Verfügung. Weiterführende Schulen sind ebenfalls leicht erreichbar. Dieser Stadtteil Kölns bietet seinen ca. 3.800 Einwohnern bürgerschaftliches Engagement und Zusammenhalt durch seine Vereine, die evangelische sowie katholische Kirchengemeinde und den verschiedenen sozialen Einrichtungen. Die Geschäfte des täglichen Bedarfs und Freizeitmöglichkeiten sind in näherer Umgebung vorhanden.
Mehr erfahren

Die hier hinterlegte Google Maps Darstellung kann leider nicht angezeigt werden, da sie die erforderliche Erlaubnis nicht gegeben haben.
Möchten sie die Darstellung erlauben?

Sonstiges


Gerne unterstützen wir Sie auch bei der geeigneten Finanzierung und/ oder dem Verkauf Ihrer Immobilie. Wir freuen uns auf Ihre Anfrage.
VERBRAUCHERINFO
1. Maklerleistung ist der Nachweis der Gelegenheit zum Abschluss eines Vertrages bzw. Vermittlung eines Vertrages über eine Immobilie gegen die Courtagezahlungspflicht des Kunden
2. Unternehmer,Anschrift,Beschwerdeadressat
LBSi NordWest, Himmelreichallee 40, 48149 Münster, Tel:0251/973233-997, eMail:info@lbsi-nw.de
GF:Martin Englert, Volker Goldbeck
3. Es besteht ein Widerrufsrecht
4. Weitere Infos: verbraucherinfo.lbsi-nordwest.de
Mehr erfahren

Verbraucherinformationen


---------------------------------------------------------------------------------------------
+++ VERBRAUCHERINFORMATION für unsere Maklerkunden +++
+++ bei außerhalb von Geschäftsräumen geschlossenen Maklerverträgen und bei Fernabsatzmaklerverträgen +++
---------------------------------------------------------------------------------------------

1. Wesentliche Eigenschaften der Maklerleistung
Der Maklervertrag mit der LBS Immobilien GmbH NordWest beinhaltet den Nachweis der Gelegenheit zum Abschluss eines Vertrages oder die Vermittlung eines Vertrages (z. B. Kauf-, Miet-, Pachtvertrag usw.) über eine Immobilie (z. B. unbebautes/bebautes Grundstück) gegen die Verpflichtung des Maklerkunden zur Zahlung einer Maklercourtage. Wird die LBS Immobilien GmbH NordWest für den Verkäufer im Alleinauftrag tätig, ist sie zu intensiven Nachweis- oder Vermittlungsbemühungen verpflichtet. Dieses beinhaltet neben der Auswertung des vorhandenen Interessentenbestandes auch, individuell nach einem geeigneten Vertragspartner zu suchen. Im Allgemeinauftrag erbringt die LBS Immobilien GmbH NordWest allgemeine Nachweis- oder Vermittlungstätigkeit, die im Wesentlichen auf die Auswertung des vorhandenen Interessentenbestandes ausgerichtet ist. Die LBS Immobilien GmbH NordWest ist hier zu werblichen Vorleistungen nicht verpflichtet.

2. Identität des Unternehmers, ladungsfähige Anschrift und Adressat für Beschwerden
LBS Immobilien GmbH NordWest
Himmelreichallee 40
48149 Münster
Tel.: 0251/973233-997, E-Mail: info@lbsi-nw.de
Geschäftsführer: Martin Englert, Volker Goldbeck

3. Art der Courtageberechnung
Die Maklercourtage kann aufgrund der Beschaffenheit der Maklerleistung im Voraus nicht benannt werden. In der Regel wird sie als ein Bruchteil des wirtschaftlichen Wertes des vermittelten bzw. nachgewiesenen Vertrages bzw. als ein Vielfaches der Monatsmiete/-pacht berechnet. Sie orientiert sich grundsätzlich an der Ortsüblichkeit.

4. Zahlungs- und Leistungsbedingungen
Die Maklercourtage ist fällig und zahlbar mit Wirksamkeit des nachgewiesenen Vertrages. Die unter Ziffer 1 beschriebenen Maklerleistungen werden bis zum Eintritt des Erfolges (wirksamer Abschluss des angestrebten Vertrages), beim Maklervertrag mit dem Verkäufer längstens bis zur Beendigung des Maklervertrages, erbracht.

5. Laufzeit des Maklervertrags
Der Maklervertrag mit dem Verkäufer hat eine Festlaufzeit von 6 Monaten und ist danach mit einmonatiger Frist in Textform kündbar.


Ihr Widerrufsrecht in Bezug auf den Maklervertrag:
------------------------------------------
+++ Widerrufsbelehrung +++
------------------------------------------

--- Widerrufsrecht ---
Sie haben das Recht, binnen vierzehn Tagen ohne Angabe von Gründen diesen Vertrag zu widerrufen.

Die Widerrufsfrist beträgt vierzehn Tage ab dem Tag des Vertragsabschlusses.

Um Ihr Widerrufsrecht auszuüben, müssen Sie uns (LBS Immobilien GmbH NordWest, Himmelreichallee 40, 48149 Münster, Tel.: 0251/973233-997, E-Mail: info@lbsi-nw.de) mittels einer eindeutigen Erklärung (z. B. ein mit der Post versandter Brief oder E-Mail) über Ihren Entschluss, diesen Vertrag zu widerrufen, informieren. Sie können dafür das beigefügte Muster-Widerrufsformular verwenden, das jedoch nicht vorgeschrieben ist.

Zur Wahrung der Widerrufsfrist reicht es aus, dass Sie die Mitteilung über die Ausübung des Widerrufsrechts vor Ablauf der Widerrufsfrist absenden.

--- Folgen des Widerrufs ---
Wenn Sie diesen Vertrag widerrufen, haben wir Ihnen alle Zahlungen, die wir von Ihnen erhalten haben, einschließlich der Lieferkosten (mit Ausnahme der zusätzlichen Kosten, die sich daraus ergeben, dass Sie eine andere Art der Lieferung als die von uns angebotene, günstigste Standardlieferung gewählt haben), unverzüglich und spätestens binnen vierzehn Tagen ab dem Tag zurückzuzahlen, an dem die Mitteilung über Ihren Widerruf dieses Vertrages bei uns eingegangen ist. Für diese Rückzahlung verwenden wir dasselbe Zahlungsmittel, das Sie bei der ursprünglichen Transaktion eingesetzt haben, es sei denn, mit Ihnen wurde ausdrücklich etwas anderes vereinbart; in keinem Fall werden Ihnen wegen dieser Rückzahlung Entgelte berechnet.

Haben Sie verlangt, dass die Dienstleistung während der Widerrufsfrist beginnen soll, so haben Sie uns einen angemessenen Betrag zu zahlen, der dem Anteil der bis zu dem Zeitpunkt, zu dem Sie uns von der Ausübung des Widerrufsrechts hinsichtlich dieses Vertrages unterrichten, bereits erbrachten Dienstleistungen im Vergleich zum Gesamtumfang der im Vertrag vorgesehenen Dienstleistungen entspricht.

--------------------------------------------------
+++ Muster-Widerrufsformular +++
--------------------------------------------------
(Wenn Sie den Vertrag widerrufen wollen, dann füllen Sie bitte dieses Formular aus und senden Sie es zurück.)
- An LBS Immobilien GmbH NordWest, Himmelreichallee 40, 48149 Münster,
E-Mail: info@lbsi-nw.de
- Hiermit widerrufe(n) ich/wir(*) den von mir/uns(*) abgeschlossenen Vertrag über den Kauf der folgenden Waren(*)/die Erbringung der folgenden Dienstleistung(*)
- Bestellt am(*)/erhalten am(*)
- Name des/der Verbraucher(s)
- Anschrift des/der Verbraucher(s)
- Unterschrift des/der Verbraucher(s) (nur bei Mitteilung auf Papier)
- Datum
____________
* Unzutreffendes streichen.

----------------------------------------------------------------------------
+++ Vorzeitiges Erlöschen des Widerrufsrechts +++
----------------------------------------------------------------------------
Ihr zunächst bestehendes Widerrufsrecht erlischt, wenn die LBS Immobilien GmbH NordWest die Maklerleistung vollständig erbracht hat und mit der Ausführung der Maklerleistung erst begonnen hat, nachdem Sie dazu Ihre ausdrückliche Zustimmung gegeben haben und gleichzeitig Ihre Kenntnis davon bestätigt haben, dass Sie Ihr Widerrufsrecht bei vollständiger Vertragserfüllung durch die LBS Immobilien GmbH NordWest verlieren.
Mehr erfahren
Ihr Ansprechpartner und Immobilienprofi in Köln:

Nils Marquardt

cp_36031

Interesse?

Kontaktieren Sie uns








Hinweis: Mit * gekennzeichnete Felder sind Pflichtangaben und müssen ausgefüllt werden.



Ihr Ansprechpartner

Nils Marquardt

cp_36031