Sitzung läuft ab

Die Sitzung endet in Sekunden.

 
Barrierefreiheit Einstellungen
Einstellungen für die Barrierefreiheit

Schriftgröße
A A A
Kontrastmodus
Eingeschaltet Ausgeschaltet
Bilder
Anzeigen Verbergen
68832051_1 68832061 68832071 68832161 68832211 68832221
5 weitere Bilder ansehen

Haus in Rheine mieten

Immobilie teilen:
Ihre Ansprechpartnerin in Rheine:

Marlies Brinker

cp_50291
Wohnfläche
254 m²
Grundstücksfläche
194 m²
Zimmer
6

Ladenlokal in 1 A Top-Lage Rheine-Fußgängerzone zu vermieten


Objektbeschreibung

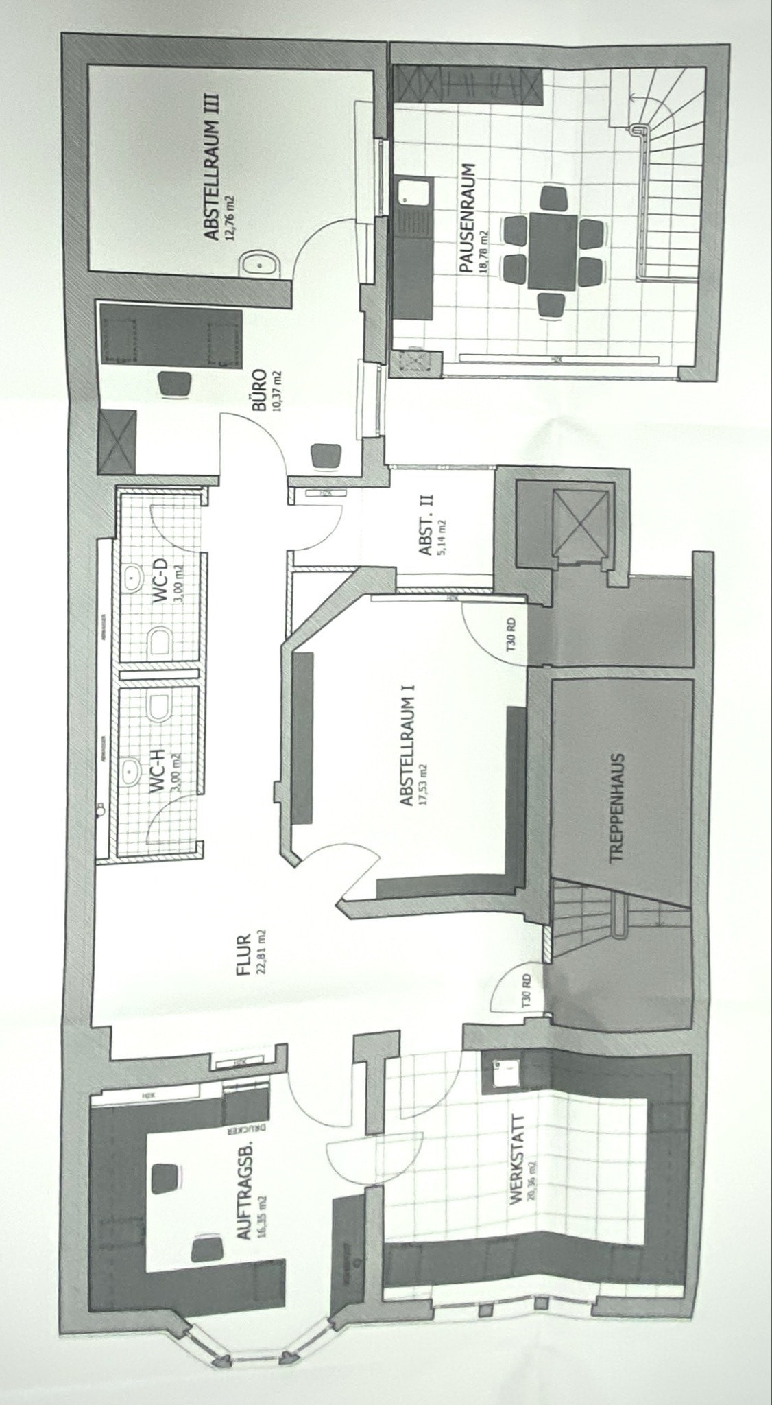
Dieses vielseitige Geschäftshaus in der begehrten Emsstraße, mitten in der belebten Fußgängerzone, bietet eine einmalige Gelegenheit für Gewerbetreibende, die viel Laufkundschaft möchten. Erdgeschoss – Hochfrequentiertes Ladenlokal (ca. 124 m²): Die großzügige und moderne Ladenfläche im Erdgeschoss ist ein absoluter Kundenmagnet. Dank der zentralen Lage und der hohen Laufkundschaft in der Fußgängerzone bietet dieses Ladenlokal eine ideale Basis für langfristigen Geschäftserfolg. 1. Obergeschoss – Gewerbeflächen (Werkstatt, Büro und Lager ca. 130 m² ): Das erste Obergeschoss erweitert die gewerblichen Nutzungsmöglichkeiten. Hier stehen Büroräume, eine Werkstatt und Abstellflächen zur Verfügung, die flexibel an die Bedürfnisse der Nutzer angepasst werden können. Verfügbar ab 1.1.2026

Mehr erfahren

Noch keine passende Finanzierung?

Hier Finanzierungsangebot einholen.

Zum Angebot

Objektdetails

Preise

Nettokaltmiete 4.530,00 €
Nebenkosten 255,00 €
Warmmiete 4.785,00 €
Kaution 5.000,00 €

Ausstattung

Fahrstuhl für Personen
Bauweise Massiv

Flächen

Wohnfläche 254 m²
Grundstücksfläche 194 m²
Gesamtfläche 508 m²
Anzahl Zimmer 6
Anzahl Schlafzimmer 3
Anzahl Badezimmer 2

Zustand

Baujahr 1925
Zustand -

Sonstiges

Objekttyp Mehrfamilienhaus
Objektnummer 154151NW
Objekt-ID FIO-10518181490
Anbieter-ID 310500

Beschreibung der Ausstattung


EG: ca. 124 m²
1. OG: ca. 130 m²
Gesamtfläche ca. 254 m²

Verfügbar ab 1.1.2026

Monatlich:
Miete EURO 4.699,-
Betriebskosten EURO 255,- incl. Heizkosten
zzgl. 19 % MwSt, Strom und Wasser

Highlights
• Top-Lage in der Emsstraße: Im Herzen der Fußgängerzone mit hoher Kundenfrequenz und bester Erreichbarkeit.

Gerne stelle ich Ihnen in einem persönlichen Gespräch das Objekt vor.

Marlies Brinker
LBS Immobilien Rheine
Mobil: 0177 - 2120411
Mehr erfahren

Immobilie in Rheine verkaufen?

Jetzt aktuellen Marktpreis erfahren.

Zum Preisfinder

Beschreibung der Lage


1A Lage, Fußgängerzone Rheine Innenstadt.
Mehr erfahren

Die hier hinterlegte Google Maps Darstellung kann leider nicht angezeigt werden, da sie die erforderliche Erlaubnis nicht gegeben haben.
Möchten sie die Darstellung erlauben?

Sonstiges


Stromverbrauch Gewerbe:

Strom (100% Ökostrom)
2022 52.646 kWh
2023 41.212 kWh (LED-Beleuchtung ab 04.2023)
2024 28.648 kWh

Verbrauch Heizung Gewerbe
2021 Erdgeschoss EURO 629,89
2021 Obergeschoss EURO 1.023,23

2022 Erdgeschoss EURO 640,76
2022 Obergeschoss EURO 1.204,52

2023 Erdgeschoss EURO 1.023,67
2023 Obergeschoss EURO 1.425,06
VERBRAUCHERINFO
1. Maklerleistung ist der Nachweis der Gelegenheit zum Abschluss eines Vertrages bzw. Vermittlung eines Vertrages über eine Immobilie gegen die Courtagezahlungspflicht des Kunden
2. Unternehmer,Anschrift,Beschwerdeadressat
LBSi NordWest, Himmelreichallee 40, 48149 Münster, Tel:0251/973233-997, eMail:info@lbsi-nw.de
GF:Martin Englert, Volker Goldbeck
3. Es besteht ein Widerrufsrecht
4. Weitere Infos: verbraucherinfo.lbsi-nordwest.de
Mehr erfahren

Verbraucherinformationen


---------------------------------------------------------------------------------------------
+++ VERBRAUCHERINFORMATION für unsere Maklerkunden +++
+++ bei außerhalb von Geschäftsräumen geschlossenen Maklerverträgen und bei Fernabsatzmaklerverträgen +++
---------------------------------------------------------------------------------------------

1. Wesentliche Eigenschaften der Maklerleistung
Der Maklervertrag mit der LBS Immobilien GmbH NordWest beinhaltet den Nachweis der Gelegenheit zum Abschluss eines Vertrages oder die Vermittlung eines Vertrages (z. B. Kauf-, Miet-, Pachtvertrag usw.) über eine Immobilie (z. B. unbebautes/bebautes Grundstück) gegen die Verpflichtung des Maklerkunden zur Zahlung einer Maklercourtage. Wird die LBS Immobilien GmbH NordWest für den Verkäufer im Alleinauftrag tätig, ist sie zu intensiven Nachweis- oder Vermittlungsbemühungen verpflichtet. Dieses beinhaltet neben der Auswertung des vorhandenen Interessentenbestandes auch, individuell nach einem geeigneten Vertragspartner zu suchen. Im Allgemeinauftrag erbringt die LBS Immobilien GmbH NordWest allgemeine Nachweis- oder Vermittlungstätigkeit, die im Wesentlichen auf die Auswertung des vorhandenen Interessentenbestandes ausgerichtet ist. Die LBS Immobilien GmbH NordWest ist hier zu werblichen Vorleistungen nicht verpflichtet.

2. Identität des Unternehmers, ladungsfähige Anschrift und Adressat für Beschwerden
LBS Immobilien GmbH NordWest
Himmelreichallee 40
48149 Münster
Tel.: 0251/973233-997, E-Mail: info@lbsi-nw.de
Geschäftsführer: Martin Englert, Volker Goldbeck

3. Art der Courtageberechnung
Die Maklercourtage kann aufgrund der Beschaffenheit der Maklerleistung im Voraus nicht benannt werden. In der Regel wird sie als ein Bruchteil des wirtschaftlichen Wertes des vermittelten bzw. nachgewiesenen Vertrages bzw. als ein Vielfaches der Monatsmiete/-pacht berechnet. Sie orientiert sich grundsätzlich an der Ortsüblichkeit.

4. Zahlungs- und Leistungsbedingungen
Die Maklercourtage ist fällig und zahlbar mit Wirksamkeit des nachgewiesenen Vertrages. Die unter Ziffer 1 beschriebenen Maklerleistungen werden bis zum Eintritt des Erfolges (wirksamer Abschluss des angestrebten Vertrages), beim Maklervertrag mit dem Verkäufer längstens bis zur Beendigung des Maklervertrages, erbracht.

5. Laufzeit des Maklervertrags
Der Maklervertrag mit dem Verkäufer hat eine Festlaufzeit von 6 Monaten und ist danach mit einmonatiger Frist in Textform kündbar.


Ihr Widerrufsrecht in Bezug auf den Maklervertrag:
------------------------------------------
+++ Widerrufsbelehrung +++
------------------------------------------

--- Widerrufsrecht ---
Sie haben das Recht, binnen vierzehn Tagen ohne Angabe von Gründen diesen Vertrag zu widerrufen.

Die Widerrufsfrist beträgt vierzehn Tage ab dem Tag des Vertragsabschlusses.

Um Ihr Widerrufsrecht auszuüben, müssen Sie uns (LBS Immobilien GmbH NordWest, Himmelreichallee 40, 48149 Münster, Tel.: 0251/973233-997, E-Mail: info@lbsi-nw.de) mittels einer eindeutigen Erklärung (z. B. ein mit der Post versandter Brief oder E-Mail) über Ihren Entschluss, diesen Vertrag zu widerrufen, informieren. Sie können dafür das beigefügte Muster-Widerrufsformular verwenden, das jedoch nicht vorgeschrieben ist.

Zur Wahrung der Widerrufsfrist reicht es aus, dass Sie die Mitteilung über die Ausübung des Widerrufsrechts vor Ablauf der Widerrufsfrist absenden.

--- Folgen des Widerrufs ---
Wenn Sie diesen Vertrag widerrufen, haben wir Ihnen alle Zahlungen, die wir von Ihnen erhalten haben, einschließlich der Lieferkosten (mit Ausnahme der zusätzlichen Kosten, die sich daraus ergeben, dass Sie eine andere Art der Lieferung als die von uns angebotene, günstigste Standardlieferung gewählt haben), unverzüglich und spätestens binnen vierzehn Tagen ab dem Tag zurückzuzahlen, an dem die Mitteilung über Ihren Widerruf dieses Vertrages bei uns eingegangen ist. Für diese Rückzahlung verwenden wir dasselbe Zahlungsmittel, das Sie bei der ursprünglichen Transaktion eingesetzt haben, es sei denn, mit Ihnen wurde ausdrücklich etwas anderes vereinbart; in keinem Fall werden Ihnen wegen dieser Rückzahlung Entgelte berechnet.

Haben Sie verlangt, dass die Dienstleistung während der Widerrufsfrist beginnen soll, so haben Sie uns einen angemessenen Betrag zu zahlen, der dem Anteil der bis zu dem Zeitpunkt, zu dem Sie uns von der Ausübung des Widerrufsrechts hinsichtlich dieses Vertrages unterrichten, bereits erbrachten Dienstleistungen im Vergleich zum Gesamtumfang der im Vertrag vorgesehenen Dienstleistungen entspricht.

--------------------------------------------------
+++ Muster-Widerrufsformular +++
--------------------------------------------------
(Wenn Sie den Vertrag widerrufen wollen, dann füllen Sie bitte dieses Formular aus und senden Sie es zurück.)
- An LBS Immobilien GmbH NordWest, Himmelreichallee 40, 48149 Münster,
E-Mail: info@lbsi-nw.de
- Hiermit widerrufe(n) ich/wir(*) den von mir/uns(*) abgeschlossenen Vertrag über den Kauf der folgenden Waren(*)/die Erbringung der folgenden Dienstleistung(*)
- Bestellt am(*)/erhalten am(*)
- Name des/der Verbraucher(s)
- Anschrift des/der Verbraucher(s)
- Unterschrift des/der Verbraucher(s) (nur bei Mitteilung auf Papier)
- Datum
____________
* Unzutreffendes streichen.

----------------------------------------------------------------------------
+++ Vorzeitiges Erlöschen des Widerrufsrechts +++
----------------------------------------------------------------------------
Ihr zunächst bestehendes Widerrufsrecht erlischt, wenn die LBS Immobilien GmbH NordWest die Maklerleistung vollständig erbracht hat und mit der Ausführung der Maklerleistung erst begonnen hat, nachdem Sie dazu Ihre ausdrückliche Zustimmung gegeben haben und gleichzeitig Ihre Kenntnis davon bestätigt haben, dass Sie Ihr Widerrufsrecht bei vollständiger Vertragserfüllung durch die LBS Immobilien GmbH NordWest verlieren.
Mehr erfahren
Ihre Ansprechpartnerin und Immobilienprofi in Rheine:

Marlies Brinker

cp_50291

Interesse?

Kontaktieren Sie uns







Hinweis: Mit * gekennzeichnete Felder sind Pflichtangaben und müssen ausgefüllt werden.




Ihre Ansprechpartnerin

Marlies Brinker

cp_50291