Sitzung läuft ab

Die Sitzung endet in Sekunden.

 
Barrierefreiheit Einstellungen
Einstellungen für die Barrierefreiheit

Schriftgröße
A A A
Kontrastmodus
Eingeschaltet Ausgeschaltet
Bilder
Anzeigen Verbergen
61971321_5 53440521_2 61971241 61971251 61971411 61971341 61971331 61971351 53440441 53440461 53440491 53440471 53443351 53443361 61971271 61971301 61971371 61971381 61971391 61971401
19 weitere Bilder ansehen

Haus in Düsseldorf kaufen

447.000 €
Immobilie teilen:
Ihr Ansprechpartner in Ratingen:

Manfred Brüggemann

cp_35401
Wohnfläche
93 m²
Grundstücksfläche
161 m²
Zimmer
4

Leistbares Familiennest!


Objektbeschreibung

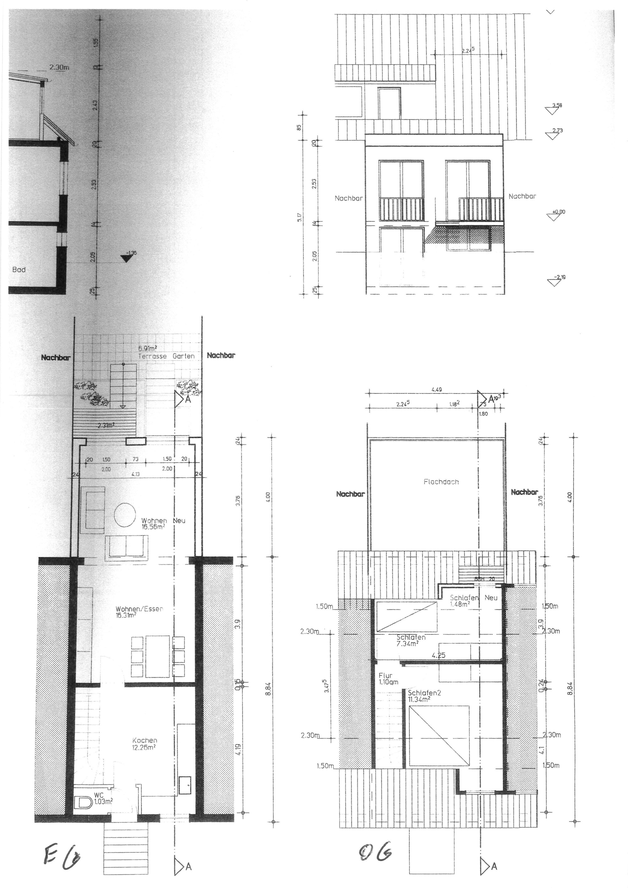
Dieses 1928 errichtete Reihenmittelhaus befindet sich in schöner Lage von Düsseldorf Hassels und ist ideal für Familien. Es erstreckt sich über zwei Etagen und ist vollständig unterkellert.
Über die Diele – welche ausreichend Platz für eine Garderobe bietet – erreichen Sie das Wohn-/ Esszimmer. Hierüber gelangen Sie auf die Terrasse in Süd-/ Westausrichtung mit anschließendem Garten. Hier können Sie gemütliche Sommertage verbringen und den Tag wunderbar ausklingen lassen. Durch die schöne große Fensterfront können Sie den herrlichen Blick in den Garten auch von drinnen genießen. Zudem befinden sich im Erdgeschoss die Küche sowie das Gäste-WC.
Über das Treppenhaus gelangen Sie in das Obergeschoss, welches mit zwei Schlafzimmern ausgestattet ist.
Ein Schlafzimmer befindet sich im wohnlich ausgebauten Keller mit direktem Austritt in den Garten.

Über die Jahre wurde einiges in das Haus investiert: neue Heizung, neue Fenster samt isolierter Rollladenkästen, neue Bodenbeläge (Fliesen und Laminat), neue Treppengeländer und neu angelegte Terrasse, isolierter Dachspeicher und vieles mehr. Im Grunde muss man bei diesem Haus erstmal nichts investieren und kann sofort einziehen.
Die abgebildete Einbauküche samt Elektrogeräten wird mitverkauft und ist Bestandteil des Angebots.

Mehr erfahren

Noch keine passende Finanzierung?

Hier Finanzierungsangebot einholen.

Zum Angebot

Objektdetails

Preise

Kaufpreis 447.000 €
Käuferprovision 3,57 % (inkl. MwSt.)

Ausstattung

Bad Dusche, Wanne, Fenster
Heizung Zentral
Heizung Gas
Abstellraum Ja
Kabel/Sat TV Ja
Gartennutzung Ja
Bodenbeläge Fliesen, Laminat
Bauweise Massiv
Dachform Satteldach

Flächen

Wohnfläche 93 m²
Nutzfläche 40 m²
Grundstücksfläche 161 m²
Fläche Balkon/Terasse 30 m²
Anzahl Zimmer 4
Anzahl Schlafzimmer 3
Anzahl Badezimmer 1

Zustand

Baujahr 1928
Zustand Gepflegt

Sonstiges

Haustiere Ja
Objekttyp Reihenhaus (Reihenmittelhaus)
Objektnummer 127709NW
Objekt-ID FIO-10516812700
Anbieter-ID 132600

Beschreibung der Ausstattung


Individuelle Ausstattungsmerkmale:

- abschließbare Fenster
- Gartenhaus
- Rollläden
Mehr erfahren

Energiepass

Gültig bis 18.10.2032
Endenergiebedarf 150,5 kWh/(m²*a)
Jahrgang 2014
Primär Energieträger Gas
Wertklasse E
Energieausweistyp Bedarfsausweis
Baujahr lt. Energieausweis 1928
Ausstellungsdatum 19.10.2022
Gebäudeart Wohngebäude
Endenergieverbrauch
150,5 kWh/(m²a)
A+
A
B
C
D
E
F
G
H
0
25
50
75
100
125
150
175
200
225
250
>250

Immobilie in Düsseldorf verkaufen?

Jetzt aktuellen Marktpreis erfahren.

Zum Preisfinder

Beschreibung der Lage


Der Stadtteil Hassels liegt im Süden Düsseldorfs und ist durch die ausgezeichnete Infrastruktur sehr gut mit den anderen Stadtteilen und der Innenstadt verbunden. Weiterhin grenzt Hassels direkt an die Stadt Hilden, die alternativ zur Innenstadt ebenfalls viele Einkaufsmöglichkeiten bietet. Gleichzeitig besticht Hassels durch einen sehr prägnanten Grünanteil. Der Waldanteil in Düsseldorf ist erstaunlich hoch und ist schon nahezu die hervorgehobenere Komponente des Ortsteils. Im Süden des Stadtteils findet man noch ein dörflicheres Zusammenleben. Fußläufig erreichbar ist ein Einkaufszentrum mit allen Geschäften für den täglichen Bedarf sowie Ärzte und Apotheken.
Verkehrsanbindung:
Die Buslinien 730: Düsseldorf Benrath – Freiligrath Platz Esprit Arena, 785: Düsseldorf Innenstadt – Hilden –Langenfeld sind fußläufig in wenigen Minuten zu erreichen.
S-Bahnhof Reisholz Linie. S 6 Köln –Langenfeld – Düsseldorf – Ratingen – Essen
Autobahn: A 46 und A 59 in der Nähe
Entfernung zum: Hauptbahnhof ca. 10 Km, Flughafen Düsseldorf ca. 30 Km
Mehr erfahren

Die hier hinterlegte Google Maps Darstellung kann leider nicht angezeigt werden, da sie die erforderliche Erlaubnis nicht gegeben haben.
Möchten sie die Darstellung erlauben?

Sonstiges


VERBRAUCHERINFO
1. Maklerleistung ist der Nachweis der Gelegenheit zum Abschluss eines Vertrages bzw. Vermittlung eines Vertrages über eine Immobilie gegen die Courtagezahlungspflicht des Kunden
2. Unternehmer,Anschrift,Beschwerdeadressat
LBSi NordWest, Himmelreichallee 40, 48149 Münster, Tel:0251/973233-997, eMail:info@lbsi-nw.de
GF:Martin Englert, Volker Goldbeck
3. Es besteht ein Widerrufsrecht
4. Weitere Infos: verbraucherinfo.lbsi-nordwest.de
Mehr erfahren

Verbraucherinformationen


---------------------------------------------------------------------------------------------
+++ VERBRAUCHERINFORMATION für unsere Maklerkunden +++
+++ bei außerhalb von Geschäftsräumen geschlossenen Maklerverträgen und bei Fernabsatzmaklerverträgen +++
---------------------------------------------------------------------------------------------

1. Wesentliche Eigenschaften der Maklerleistung
Der Maklervertrag mit der LBS Immobilien GmbH NordWest beinhaltet den Nachweis der Gelegenheit zum Abschluss eines Vertrages oder die Vermittlung eines Vertrages (z. B. Kauf-, Miet-, Pachtvertrag usw.) über eine Immobilie (z. B. unbebautes/bebautes Grundstück) gegen die Verpflichtung des Maklerkunden zur Zahlung einer Maklercourtage. Wird die LBS Immobilien GmbH NordWest für den Verkäufer im Alleinauftrag tätig, ist sie zu intensiven Nachweis- oder Vermittlungsbemühungen verpflichtet. Dieses beinhaltet neben der Auswertung des vorhandenen Interessentenbestandes auch, individuell nach einem geeigneten Vertragspartner zu suchen. Im Allgemeinauftrag erbringt die LBS Immobilien GmbH NordWest allgemeine Nachweis- oder Vermittlungstätigkeit, die im Wesentlichen auf die Auswertung des vorhandenen Interessentenbestandes ausgerichtet ist. Die LBS Immobilien GmbH NordWest ist hier zu werblichen Vorleistungen nicht verpflichtet.

2. Identität des Unternehmers, ladungsfähige Anschrift und Adressat für Beschwerden
LBS Immobilien GmbH NordWest
Himmelreichallee 40
48149 Münster
Tel.: 0251/973233-997, E-Mail: info@lbsi-nw.de
Geschäftsführer: Martin Englert, Volker Goldbeck

3. Art der Courtageberechnung
Die Maklercourtage kann aufgrund der Beschaffenheit der Maklerleistung im Voraus nicht benannt werden. In der Regel wird sie als ein Bruchteil des wirtschaftlichen Wertes des vermittelten bzw. nachgewiesenen Vertrages bzw. als ein Vielfaches der Monatsmiete/-pacht berechnet. Sie orientiert sich grundsätzlich an der Ortsüblichkeit.

4. Zahlungs- und Leistungsbedingungen
Die Maklercourtage ist fällig und zahlbar mit Wirksamkeit des nachgewiesenen Vertrages. Die unter Ziffer 1 beschriebenen Maklerleistungen werden bis zum Eintritt des Erfolges (wirksamer Abschluss des angestrebten Vertrages), beim Maklervertrag mit dem Verkäufer längstens bis zur Beendigung des Maklervertrages, erbracht.

5. Laufzeit des Maklervertrags
Der Maklervertrag mit dem Verkäufer hat eine Festlaufzeit von 6 Monaten und ist danach mit einmonatiger Frist in Textform kündbar.


Ihr Widerrufsrecht in Bezug auf den Maklervertrag:
------------------------------------------
+++ Widerrufsbelehrung +++
------------------------------------------

--- Widerrufsrecht ---
Sie haben das Recht, binnen vierzehn Tagen ohne Angabe von Gründen diesen Vertrag zu widerrufen.

Die Widerrufsfrist beträgt vierzehn Tage ab dem Tag des Vertragsabschlusses.

Um Ihr Widerrufsrecht auszuüben, müssen Sie uns (LBS Immobilien GmbH NordWest, Himmelreichallee 40, 48149 Münster, Tel.: 0251/973233-997, E-Mail: info@lbsi-nw.de) mittels einer eindeutigen Erklärung (z. B. ein mit der Post versandter Brief oder E-Mail) über Ihren Entschluss, diesen Vertrag zu widerrufen, informieren. Sie können dafür das beigefügte Muster-Widerrufsformular verwenden, das jedoch nicht vorgeschrieben ist.

Zur Wahrung der Widerrufsfrist reicht es aus, dass Sie die Mitteilung über die Ausübung des Widerrufsrechts vor Ablauf der Widerrufsfrist absenden.

--- Folgen des Widerrufs ---
Wenn Sie diesen Vertrag widerrufen, haben wir Ihnen alle Zahlungen, die wir von Ihnen erhalten haben, einschließlich der Lieferkosten (mit Ausnahme der zusätzlichen Kosten, die sich daraus ergeben, dass Sie eine andere Art der Lieferung als die von uns angebotene, günstigste Standardlieferung gewählt haben), unverzüglich und spätestens binnen vierzehn Tagen ab dem Tag zurückzuzahlen, an dem die Mitteilung über Ihren Widerruf dieses Vertrages bei uns eingegangen ist. Für diese Rückzahlung verwenden wir dasselbe Zahlungsmittel, das Sie bei der ursprünglichen Transaktion eingesetzt haben, es sei denn, mit Ihnen wurde ausdrücklich etwas anderes vereinbart; in keinem Fall werden Ihnen wegen dieser Rückzahlung Entgelte berechnet.

Haben Sie verlangt, dass die Dienstleistung während der Widerrufsfrist beginnen soll, so haben Sie uns einen angemessenen Betrag zu zahlen, der dem Anteil der bis zu dem Zeitpunkt, zu dem Sie uns von der Ausübung des Widerrufsrechts hinsichtlich dieses Vertrages unterrichten, bereits erbrachten Dienstleistungen im Vergleich zum Gesamtumfang der im Vertrag vorgesehenen Dienstleistungen entspricht.

--------------------------------------------------
+++ Muster-Widerrufsformular +++
--------------------------------------------------
(Wenn Sie den Vertrag widerrufen wollen, dann füllen Sie bitte dieses Formular aus und senden Sie es zurück.)
- An LBS Immobilien GmbH NordWest, Himmelreichallee 40, 48149 Münster,
E-Mail: info@lbsi-nw.de
- Hiermit widerrufe(n) ich/wir(*) den von mir/uns(*) abgeschlossenen Vertrag über den Kauf der folgenden Waren(*)/die Erbringung der folgenden Dienstleistung(*)
- Bestellt am(*)/erhalten am(*)
- Name des/der Verbraucher(s)
- Anschrift des/der Verbraucher(s)
- Unterschrift des/der Verbraucher(s) (nur bei Mitteilung auf Papier)
- Datum
____________
* Unzutreffendes streichen.

----------------------------------------------------------------------------
+++ Vorzeitiges Erlöschen des Widerrufsrechts +++
----------------------------------------------------------------------------
Ihr zunächst bestehendes Widerrufsrecht erlischt, wenn die LBS Immobilien GmbH NordWest die Maklerleistung vollständig erbracht hat und mit der Ausführung der Maklerleistung erst begonnen hat, nachdem Sie dazu Ihre ausdrückliche Zustimmung gegeben haben und gleichzeitig Ihre Kenntnis davon bestätigt haben, dass Sie Ihr Widerrufsrecht bei vollständiger Vertragserfüllung durch die LBS Immobilien GmbH NordWest verlieren.
Mehr erfahren
Ihr Ansprechpartner und Immobilienprofi in Ratingen:

Manfred Brüggemann

cp_35401

Interesse?

Kontaktieren Sie uns








Hinweis: Mit * gekennzeichnete Felder sind Pflichtangaben und müssen ausgefüllt werden.



Ihr Ansprechpartner

Manfred Brüggemann

cp_35401